日本の佇まい
国内の様々な建築について徒然に記したサイトです
町並み紀行
建築探訪
建築の側面
建築外構造物
ニシン漁家建築
北の古民家

間取り逍遥
 
INDEXに戻る
住宅メーカーの住宅
出版社の企画住宅:三菱地所ホーム・LEEの家(ASSET 900 LIVE)
1.開発経緯と内外観概要
※1

30〜40代の女性を主な読者層として集英社より1983年5月に創刊した月刊誌「LEE」。 その1985年11月号にて、企画住宅のアイデアを読者より広く募る旨、告知がなされた。
寄せられた意見は50点。 内容が精査され、三菱地所ホームと提携してプランを策定。 1986年3月号にその概要が公表された。

更に、東京赤坂に開設されている三菱地所ホーム独自の住宅展示場「赤坂アセット・ハウジングギャラリー」※1にモデルハウスを建設。

1982年5月1日に開設。 東京赤坂の薬研坂に面し、同社の複数のモデルハウスを展示している。
同年7月号に、「LEEの家が完成しました。」と題する同誌創刊3周年特別企画記事が18ページにわたって掲載。 副題を「「私たちの生活の舞台はこうあって欲しい」その願いを込めて」とし、各部位に込められた考え方と共に内外観が紹介された。

LEEの家(赤坂モデル)外観*
※2

ASSET101外観*
三菱地所の戸建て住宅進出最初期モデル。 LEEの家を含め、同社の他の多くのモデルが2×4工法を採用しているのに対し、当該モデルは軸組木造。

東西に棟を通した急勾配の切妻屋根をおおらかに葺いた小屋裏二階建てのボリュームは、1978年に同社が発表した「ASSET101」※2を思わせる。 但し、ASSET101がやや閉鎖的な構えをとるのに対し、LEEの家は屋根の南面に大きくパーゴラを取り、直下にテラスを配した開放的な造り。
向かって右手の下屋部分が玄関。 中に入ると奥まで視線が抜け、ガラス張りの開口の向こう側に壁で囲われた坪庭をアイキャッチとして配している。

玄関廻り*
テラス廻り*
その玄関に直交して取り付くホールを両開き扉を介して中へと進むと、南側にラウンジ。 床レベルを数段下げてコルクタイルを敷き詰めたピット状の設えは、家族がごろ寝をしながら寛げる空間を指向したもの。
その奥に「ファミリーホール」と名付けられた二層吹抜けの部屋が続く。 南に面して窓が大きく穿たれ、その外側には外観のポイントとなっているパーゴラを直上に配したテラスに面し、屋内に自然光が燦々と降り注ぐ。
更に奥に続くキッチンは、家族皆が楽しく料理に参加できるように十分なスペースを確保したアイランド型を採用。 キッチンの南側に張り出すように、「ハウスオフィス」と名付けられた(一般呼称を当て嵌めるならば)家事室が接続。 きめ細かな収納計画がなされた家具が実装され、充実した日常生活をサポートする。
LEEの家(赤坂モデル)平面図*

北側にはサニタリースペースを一列に配置。 キッチンと玄関ホールを結ぶ動線が、南面の各室を往来する動線とは別に確保されている。
二階に昇ると、「ホーム・ライブラリー」と名付けられた家族共用のギャラリーが吹き抜けを介して下階の「ファミリーホール」と開放的に繋がる。 そのギャラリーを挟んで左右に個室を配置。 家族個々人のプライバシーを確保しつつ、ギャラリーとの連関によって孤室化リスクが退けられた。



2.出版社ならではの市場参入

引用画像補足:

ファミリーホール;
二階廊下から吹き抜け越しに俯瞰したアングル。 右手外部開口の屋外が、上記1.に引用したテラス。 左上方の吹き抜けに面した斜壁は、主寝室に至る通路部分の手摺。 その直下にピット形式となったラウンジが見える。

キッチン;
家族全員がキッチンセットを四方から囲んで調理に参加できるようアイランド型を採用。 「食楽家族の舞台」が演出された。
左手奥に「ハウスオフィス」が連続する。

※3

次月以降、同誌では「「LEEの家」ディテール探訪」と題する特集記事を連載している。

8月号は「LEEの家は食楽家族の舞台です。」とのタイトルを掲げ、冒頭に母親と子供、そして子供の友達が多数集まりファミリーホールでパーティーを催すシーンを掲載。 当該室とキッチンの造作について詳述された。
9月号は「LEEの家は快適家事を提案します。」とし、ハウスオフィスやサニタリー廻りについて取り上げている。 主婦の書斎としてのハウスオフィスに実装された様々な造り付け家具や設備について、日常の家事を快適に進めるためのアイデアが、実際にそれらを使いこなす主婦の姿と捉えた多数の写真と共に詳述。
10月号は「住まいは省エネと安全をシステム化する。」と題し、省エネ対応に纏わる設備機器の解説。 そして11月号は「LEEの家は元気な子供が育つ家。」とし、子育ての面からのプランの工夫が述べられている。

キッチン廻り*
ファミリーホール俯瞰*

企画着手段階より読者に広く告知しアイデアを募集。 1986年3月号の概要公表時には寄せられたコメントの一部を公開し、読者と共に企画住宅を創り上げるプロセスが演出された。 更には、特集記事の連載によって読者に住宅の魅力を広く訴えかける。 広告では無く記事に拠る読者の囲い込みは、雑誌社ならではの取り組みとして興味深い※3

住宅メーカーが雑誌出版社とタイアップする例は多々ある。
例えば、ミサワホームが2003年4月に「It's MY STYLE「FORMAL U」」を発表した際には、ワールドフォトプレス社発行の月刊誌「memo男の部屋」の同年6月号の多くのページが同モデルの記事にあてられた。 特別付録として1/100スケールの精巧なペーパークラフトを途中ページに挿入して同誌がターゲットとする読者層が関心を持つきっかけを仕掛ける取り組みなどは紙媒体ならでは。


※4
1983年9月にナショナル住宅産業(当時)から発売された「パナホーム・ウィンスロー」のキッチン内観**
右手水屋の中段カウンター部分に半円形のスライドテーブルを設置。 必要に応じて出し入れし、家事や軽食、そして読書に供する等、単なる調理の場に留まらぬキッチンの利活用が提案された。


※5
ここで「お前」とは妻を指し、このフレーズを口にするのが夫であることは、いわずもがな。
このフレーズを組み込んだ同モデルのCMソングも作成された。

ちなみに、モデルハウス内を彩る什器や備品等のコーディネートも、普段から女性向けのそれらを記事として扱う同誌が手掛けた。
それぞれの記事を眺めてみると、在宅時間が長い主婦が、家族とのコミュニケーションの円滑化も含めて豊かで充実した日常を過ごすための空間構成に意を払った様子が容易に伺える。 女性向け雑誌の編集者が女性読者のニーズを踏まえた住まいを企画するとどうなるか。 そのテーマが各所に逐一具現化されている様に読み取れる。
そしてそこに、男性若しくは父親の姿は殆ど現れない。 連載記事においても、11月号に辛うじて子供と一緒に僅かに登場するのみだ。

3.商品企画の指向
主婦をターゲットに据えたモデルの開発。 業界のその動向は、70年代終盤。 即ち、工業化住宅から商品化住宅へと市場の課題ないしは価値観が移行し始めた時期より、キッチン廻りの充実を中心に散見される様になる。

例えば、それまでの様に家族団らんの場に背を向けるように独立してキッチンを配置するのではなく対面型とする。 キッチンセットを構成する機器の配置や収納に、実際の調理作業を鑑みたきめ細やかな配慮を施し、オプションの水屋にも多様な仕掛けを搭載※4。 そしてキッチンに連続して主婦専用の家事コーナーを設える。 あるいはキッチンと水廻りを近接させ家事動線を短絡し、家事の効率化を図る、等々。

主婦を意識し、主婦が長い時間滞留するキッチン廻りを中心に商品性を強化して他社モデルと差別化を図る目論み。 それは、住まい選びに際して多くは妻がその決定権を持ち、夫は追認する立場となる傾向を踏まえた流れだ。
積水化学工業が1979年に発表したセキスイハイムM3NEWのキャッチコピー「お前がいいと言うのなら」※5に、その傾向が端的に顕われている。

既にその手のモデルが市場に溢れ既に十分爛熟した感を呈するタイミングで登場したLEEの家は、果たしてどの様に位置づけられ、そして評価されたのか。 あるいは独自性を示し得たのだろうか。


4.指向と現実と
ファミリーホール*
LEE誌の紙上内覧特集に載るファミリーホールには、椅子が何脚も並べられた大きな長卓が中央に据えられた。 高い天井高を誇る吹き抜け空間の下、その設えは日常の食卓の風景からはやや乖離した感が無きにしも非ず。
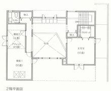
その印象を裏付けるように、三菱地所ホームでは当該モデルに同社ブランドを冠した「ASSET 900 LIVE」との名称も併用し、プランバリエーションに現実を鑑みた調整を施した。
アイランド型キッチンはファミリーホールに背を向けるように壁付けの配置に改められ、ハウスオフィスに搭載されたギミック満載の家具も取り止め。 ピットを設えたラウンジも普通の室に改められた。 これらの操作によって平面プランの雰囲気は一変。 諸室配置や動線計画に破綻は見受けられぬものの、そこにLEEの家としての独自性は見い出しにくい。
ASSET 900 LIVE(4596タイプ)平面図*
※6
domainは、在宅起業のためのフリースペースを宅内に標準配置したモデル。
ターゲットを女性に限定はしていなかったが、当該モデルの発表に合わせて「一居六得の話」と題する書籍を刊行。 その副題は「ホームビジネスを実践した10人の主婦」であった。
また、季刊誌「DOMAIN」も同時期に創刊。 創刊号では「奥さまの在宅勤務実例集」と題する特集を組んでおり、在宅起業する女性を後押しする企画をdomainの発表に合わせて打ち出していた。

同誌1998年9月号には、LEEの家の建築事例が紹介されている。
外観イメージを踏襲しつつ、敷地形状や住まい方の条件からモデルプランとは異なる内外観仕上げ。 その事例も、LEEの家が何たるかを捉えにくいものとする。
施主は、在宅起業している女性。 そこから見い出される住まいの在りようや実際の暮らしぶりは、むしろ1983年10月にミサワホームが発表した「domain」にて指向された商品企画に近しい。 すなわち、女性を家事の担い手のみならず仕事にも積極的に取り組む立場として捉えた住まい※6

今や、女性=主婦ないしは母親=家事の捉え方は既に十分古い価値観と化し、それに代わる商品性の追求が求められる時代となって久しい。 家事シェアや育児シェアなどの言葉はその顕われだ。
そんな今日の状況下で、女性向け情報誌が再び現代のLEEの家を企画するとしたら、どの様な形態を纏うのだろう。



 
INDEXに戻る
引用した図版の出典
*:三菱地所ホーム
**:ナショナル住宅産業

2025.11.08/記